Revit  

Cover Page - 12/12/2025

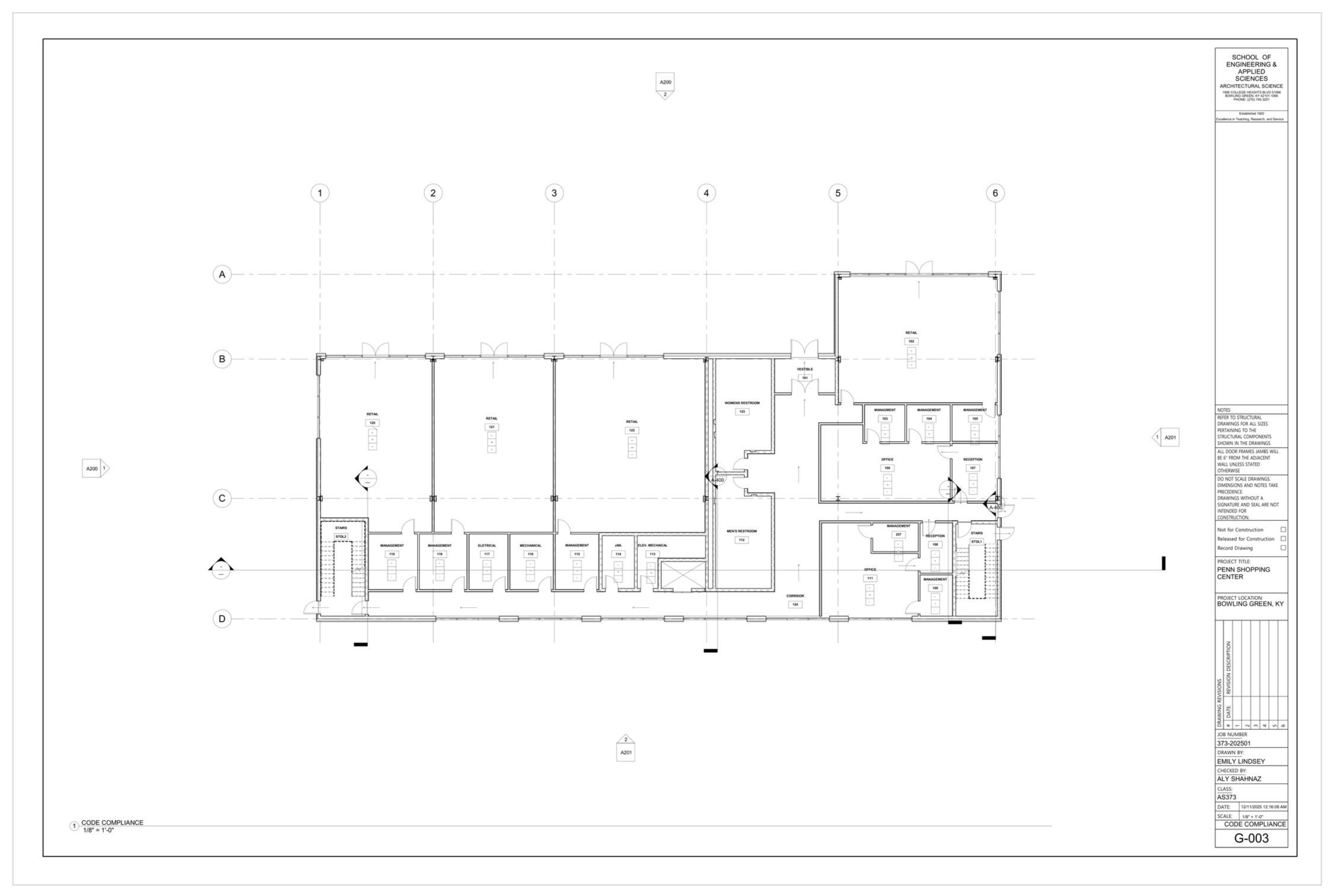
The building will meet all applicable building codes and ADA requirements, incorporating properly sized corridors, fire-rated elevator lobbies, stairs, an elevator, sprinklers, mechanical and electrical rooms, water heaters, and a vestibule for HVAC efficiency. Site requirements include a minimum of 10% green space, separate curb cuts for traffic flow, ADA-compliant parking, fire lanes, zoning compliance, and a service/loading area. Interior finishes will feature drywall partitions, dropped ceilings, carpet tile and durable flooring, minimum 9-foot ceilings, and daylighting throughout.

Site Plan - 11/15/2025

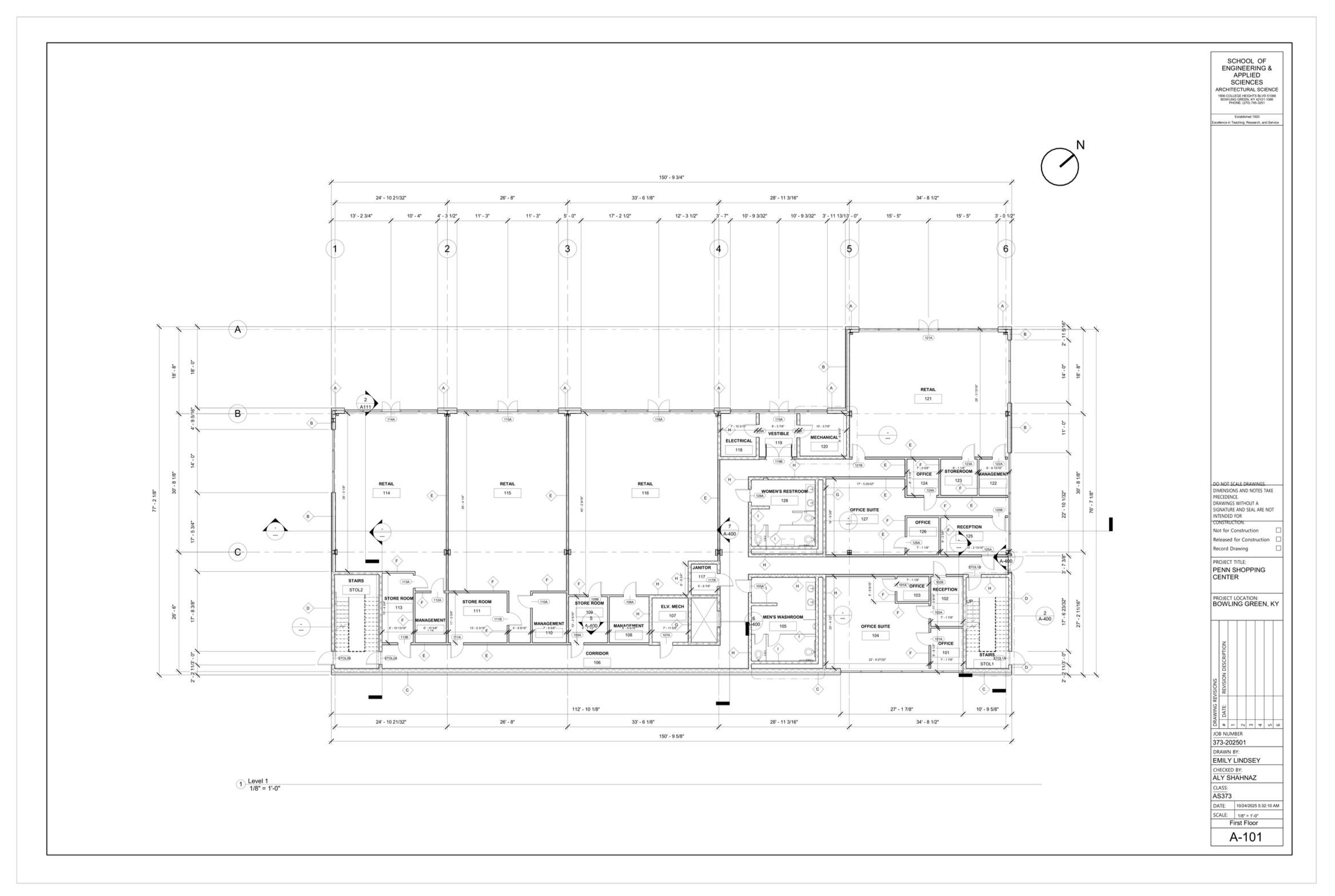
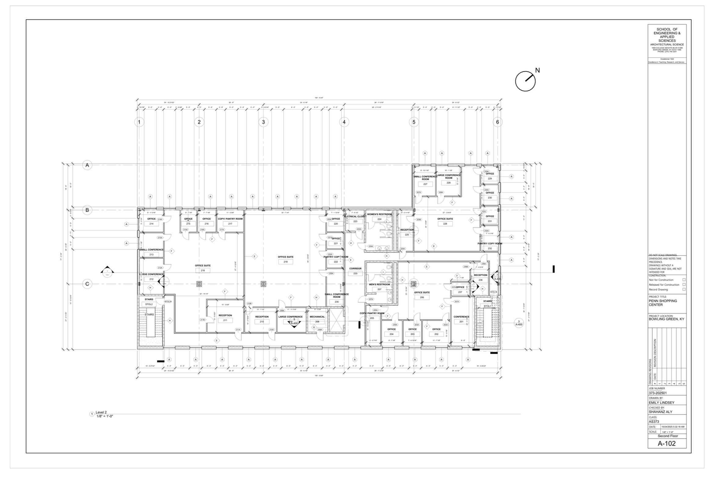
The design goal for this project was a two-story commercial strip mall–style building totaling between 15,000 and 18,000 square feet, designed with an emphasis on efficiency and code compliance. The first floor will include four to five retail spaces with direct exterior access and two to three smaller professional or dental office suites, while the second floor will be dedicated to four to five larger business office suites with conference rooms and support spaces.

Code Compliance- 12/11/2025

First Floor- 10/24/2025

Second Floor- 10/24/2025

Roof Plan- 10/24/2025

RCP- 11/10/2025

Schedules- 11/20/2025

North and West Elevations- 11/10/2025

South and East Elevations- 11/10/2025

Building Section- 12/12/2025

Stairs and Elevator Details- 12/11/2025

Washroom Details- 12/12/2025


Site Plan- 9/25/2025

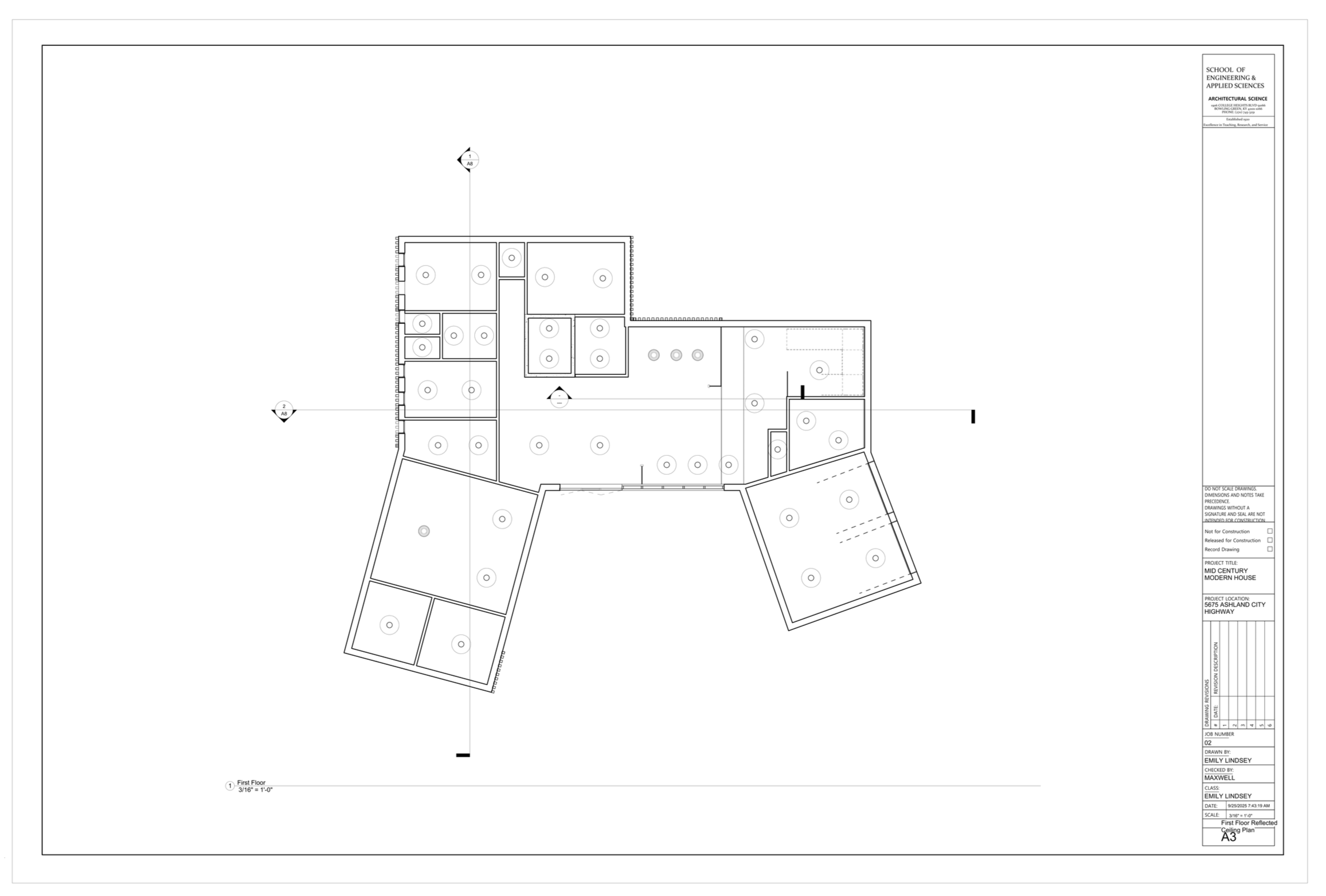
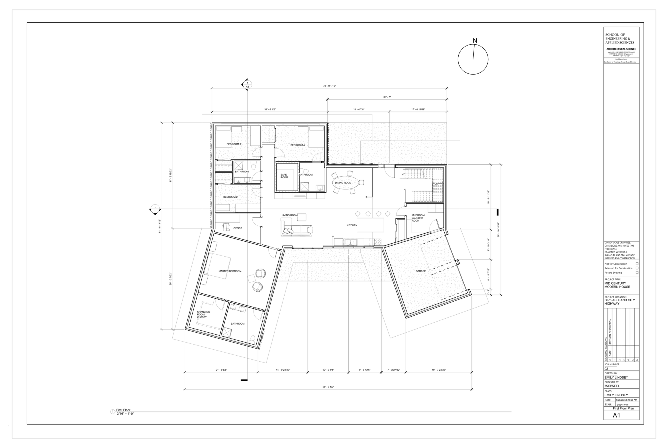
The criteria for this project was to design a mid-century modern inspired home located in Nashville, Tennessee. The client requested a four-bedroom residence with lofty ceilings and ample space for art display. Inspiration was drawn from the work of Rudolph Schindler and Richard Neutra, both of whom are known for creating beautiful and distinctive mid-century modern homes. The primary exterior materials include stucco, dark oak, and concrete, complemented by a white metal roof. These materials are carried through to the interior, creating a cohesive connection between the exterior and interior spaces while reinforcing the home’s modern aesthetic.

First Floor Plan- 9/25/2025

Second Floor Plan - 9/25/2025

First Floor RCP - 9/25/2025

Second Floor RCP - 9/25/2025

Building Sections- 9/25/2025

North and East Elevations- 9/25/2025

South and West Elevations- 9/25/2025

Renderings- 9/25/2025

Renderings- 9/25/2025


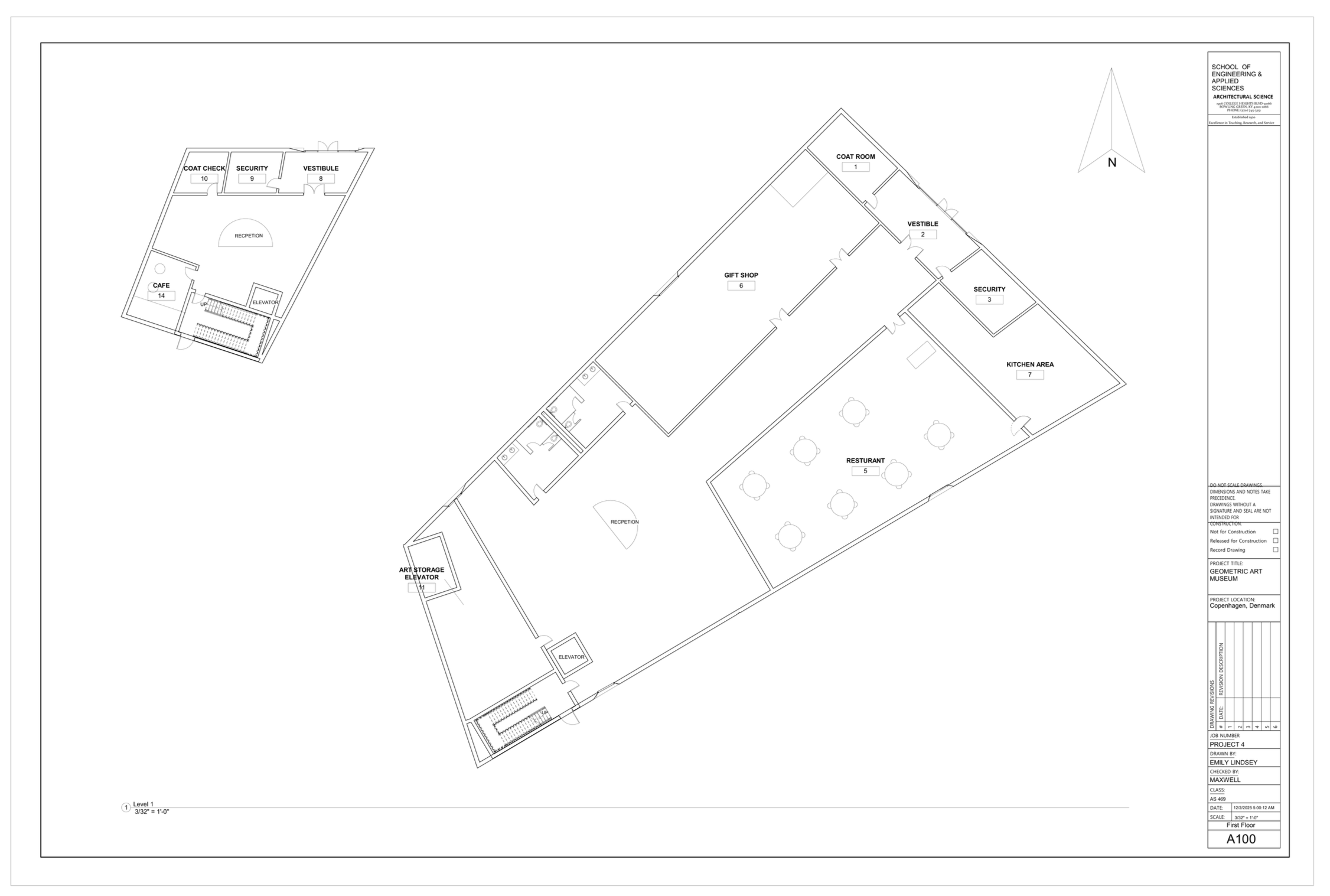
The building site for this art museum is located in Copenhagen, Denmark, near the Arts District and adjacent to the river. For life safety and code compliance, the International Code Council was referenced throughout the design process. The site presented a unique challenge, as it straddled a highway, requiring a thoughtful response to circulation, structure, and safety.

Site Plan- 12/2/2025

First Floor Plan- 12/2/2025

To address the site conditions, the building form was resigned to reflect stacked books, reflecting the museum’s artistic and cultural purpose. The design consists of three stacked volumes constructed from stained concrete blocks, with a gradient that transitions from dark gray at the base to light gray at the uppermost level. This progression emphasizes the layered form while creating a visually cohesive composition that responds to both the urban context and the conceptual inspiration.

Second Floor Plan- 12/2/2025

Third Floor Plan- 12/2/2025

I designed the exhibit walls to function as narrative elements within the museum itself. These walls take the form of curved concrete surfaces that vary in thickness and height, creating a dynamic and immersive spatial experience. The design was inspired by the sculptural work of Richard Serra, whose large-scale pieces emphasize movement, mass, and the relationship between the viewer and the built form. These concrete walls serve both as structural and display elements, supporting the artwork while guiding visitors through the space. Dramatic overhead spot lighting enhances the texture and curvature of the walls, reinforcing their sculptural quality and creating a focused, contemplative environment for viewing the exhibits.

First Floor RCP- 12/2/2025

Second Floor RCP- 12/2/2025

Third Floor RCP- 12/2/2025

I drew inspiration from the work of Höweler+Yoon for the design of the entrances. A key aspect of their design philosophy is that pedestrians should be able to immediately recognize a building’s entrance through its sense of grandeur and architectural expression. This concept was implemented by canting the storefront and recessing it into the wall plane, creating depth and visual emphasis. The plain white finish of the sloped edges further distinguishes the entrance, making it clearly identifiable.

North and South Elevations- 12/2/2025

East and West Elevations- 12/2/2025

Building Section- 12/2/2025

Renderings- 12/2/2025

Renderings- 12/2/2025

The windows were designed using a similar approach, clustering along the walls in a cascading arrangement that resembles a waterfall moving upward through the building’s form. This reinforces the vertical progression of the structure while adding visual rhythm to the façade. The third story intentionally lacks windows in order to preserve and protect the sensitive contents of the museum, ensuring appropriate environmental control and security for the artwork.


Site Plan - 5/7/2025

First Floor Plan - 5/7/2025

When we first began learning Revit, my professor emphasized the importance of creating projects that could be showcased in a professional portfolio. For one assignment, we were instructed to take a previous project developed in AutoCAD and recreate it in Revit. I chose to transition a residential house that I had spent an entire semester designing.

Through this process, I not only strengthened my understanding of Revit but also applied the technical knowledge I had previously developed in AutoCAD. Rebuilding the project allowed me to approach the design from a new perspective, and I was able to identify and resolve issues that had initially gone unnoticed. Refining the house in Revit helped me improve both the technical accuracy and overall quality of the design. The final result reflects my current skill level in Revit and demonstrates my growth as a drafter.

Foundation Plan - 5/7/2025

South and West Elevation - 5/7/2025

Cross Section - 5/7/2025