AutoCAD

Eave Detail - 2/16/2025

This drawing was created as part of a study exploring various construction details. Specifically, it illustrates a roof eave condition developed as a three-part system. The drawing examines the relationship between structural support, material layering, and edge termination, providing a clear understanding of how the components work together to ensure both functional performance and a clean architectural expression.


Commercial Building Section with Steel Stud- 4/21/2025

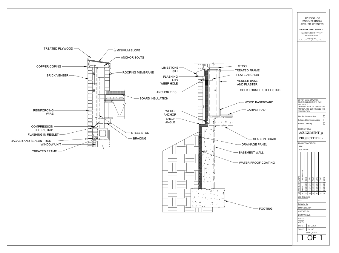
This drawing showcases another commercial wall section detail. It includes a brick veneer exterior, a parapet condition, reinforced concrete construction, and a slab-on-grade foundation. The detail was developed to study the transition at the roof edge, the integration of structural and enclosure systems, and the proper layering of materials to ensure durability, weather protection, and overall building performance.


This detail illustrates a commercial building wall section. The drawing includes a brick exterior, steel stud framing, and a slab-on-grade foundation. It was developed to study the integration of structural and enclosure systems, as well as the proper layering of materials to ensure structural stability, durability, and effective building performance.

Commercial Building Section - 4/21/2025


This drawing was completed as practice in developing residential building details. It includes a cross section of a brick veneer wall, a roof eave, a window system, and a slab-on-grade foundation. The purpose of the drawing was to understand the relationship between structural components, material layers, and construction methods, while reinforcing proper detailing techniques for residential construction.

Residential Building Section - 4/02/2025


Single Story Home Floor Plan - 9/20/2024

This single-story house was designed as an exercise in developing a custom floor plan based on specific client criteria. Located in Bowling Green, the design offers a contemporary interpretation of the traditional ranch-style home. The exterior features a primarily brick facade, complemented by asphalt shingle roofing. The project focused on balancing functional layout, residential comfort, and cohesive material expression while adapting a traditional floor plan to better suit modern living needs.

Single Story Home Foundation Plan - 9/27/2024

Single Story Home Roof Plan - 9/30/2024

Single Story Home Front and Right Elevation - 10/18/2024

Single Story Home Kitchen Front View - 10/25/2024

Single Story Home Site Plan - 11/20/2024